Key information
£759,950
Newcastle Drive, The Park
View on map
Key features
- Prestigious Park Estate location with easy access to Nottingham city centre
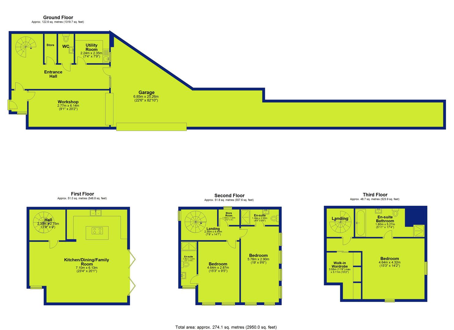
- Entrance hall, boot room, WC and utility room with integrated washing machine
- First-floor open-plan lounge and kitchen with bi-fold doors to terrace and garden
- Modern kitchen with island, quartz and glass worktops and integrated appliances
- Two double bedrooms each with stylish en-suite shower rooms
- Master bedroom suite with vaulted ceiling, fabulous walk-in wardrobe and luxury en-suite bathroom
- Landscaped garden with terrace, lawn and established planting
- Integral garage plus additional triple-parking garage with storage
- EPC Band C / Council Tax Band G
- Freehold
Overview
This distinctive property offers stylish accommodation arranged over several floors, thoughtfully designed to maximise light, space and modern living. The specification is of a good standard throughout with contemporary finishes.The accommodation briefly comprises: an impressive entrance hall with engineered wood flooring and personal door providing access to the integral garage. An inner hallway with attractive engineered wood flooring leads to a boot room, separate WC and well-appointed utility room fitted with storage units and an integrated washing machine. The property benefits from an integral garage with light and power, in addition to a further garage with electronic operated roller door and lighting, providing parking for up to three vehicles and a generous storage area.
To the first floor there is a superb, spacious lounge with engineered wood flooring and ceiling downlights, creating a sleek and elegant living environment. Bi-folding doors open onto the terrace and landscaped garden, providing excellent indoor–outdoor flow. The lounge is open plan to the contemporary kitchen, fitted with a range of modern units, glass worktops and splashbacks, and a range of integrated appliances including fridge/freezer, oven, microwave and dishwasher. A central island with quartz worksurface and large hob offers an ideal space for both cooking and entertaining.
The second floor offers a landing area with walk-in storage room. Bedroom two enjoys double-aspect windows and a modern en-suite shower room. Bedroom three also features its own stylish en-suite shower room, making this level ideal for guests or family members.
The third floor is dedicated to an impressive master bedroom suite, boasting a vaulted ceiling, double-aspect windows and an abundance of natural light. This exceptional space includes a luxurious walk-in wardrobe with fitted dressing table and drawers. The opulent en-suite bathroom is fitted with bath and separate shower, accessed via opaque glass door and side panels, creating a spa-like retreat.
Outside, the property is complemented by landscaped gardens featuring a terrace ideal for alfresco dining, areas of lawn and established, mature planted beds, providing an attractive outlook.
This is a rare opportunity to acquire a high-quality home within one of Nottingham’s most desirable residential locations, offering generous accommodation, stylish presentation and excellent access to the city centre.
Back to property search































