Key information
£765,000
Sold
Fiennes Crescent, The Park, Nottingham
View on map
Fill in the form to download the brochure
Thank you, your download will begin shortly
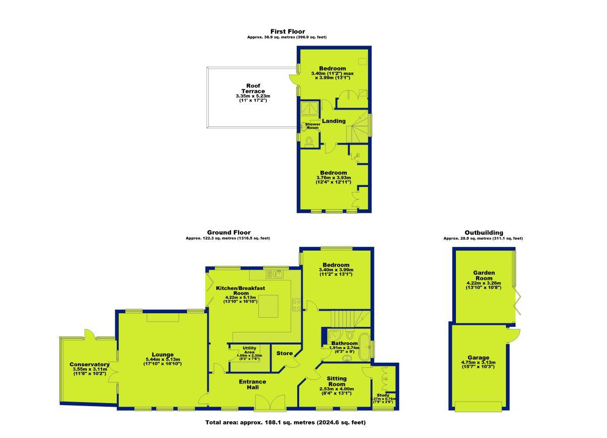
Key features
- Individual Detached Character Home
- Prestigious Location
- Well-Presented Throughout
- Lounge/Conservatory
- Breakfast Kitchen with Appliances and Utility
- Four Bedrooms and Two Bathrooms
- Charming Entrance Hall
- Garage - Garden Room - Delightful Courtyard
- Internal Area Approx. 2,000 Sqft inc Garage/Garden Room
- Tenure - Freehold
Overview
FHP Living feel privileged to be offering such a rare visitor to the open market, a fabulous detached Coach house with the accommodation creatively arranged over two floors. Offering well-presented interiors including exposed beams to the hallway, which adds character and charm to this highly individual home.Appealing to the discerning purchaser, as well as affording the sort of comfort and convenience that one would associate in a property of this calibre, the accommodation and features briefly comprise; Gothic style entrance door which opens onto the characterful entrance hall, enjoying exposed beams and Velux style windows allowing natural light to flow, built in storage cupboard and access to the well-appointed breakfast kitchen, fitted with a range of stylish modern units and appliances, an island unit/breakfast bar, Granite worktops and bifold style doors leading out to the rear courtyard.
The lounge features a gas fire and access to a light and airy conservatory with door to the outside.
In addition, there are four bedrooms spanning two floors, a small study off one of the guest bedrooms, small utility, two modern bath/shower rooms and a delightful roof terrace leading from one of the upstairs bedrooms.
Outside, the delightful enclosed courtyard must be seen to be fully appreciated and offers a variety of potted plants and shrubs, together with a rock feature and access the small single garage and garden room.
Back to property search



























