Key information
Guide Price
£450,000
Under Offer
Lady Bay Road, West Bridgford
View on map
Fill in the form to download the brochure
Thank you, your download will begin shortly
Key features
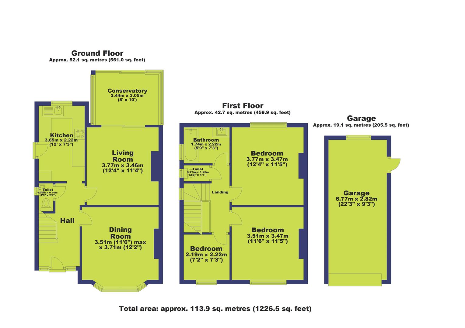
- Detached house
- Three bedrooms
- Separate kitchen
- Sought-after school catchments
- Conservatory
- 85ft Garden
- Driveway
- Garage
- Council tax - Band C
- Tenure - Freehold
Overview
GUIDE PRICE £450,000 - £475,000A rare opportunity in Lady Bay with outstanding potential
A fantastic opportunity to reimagine and extend a detached home on one of Lady Bay's most desirable roads. Set on an expansive plot with an impressive 85ft rear garden, this property offers the perfect foundation for creating a substantial 4/5 bedroom family home - while still retaining a large, mature outdoor space.
Currently arranged as a three-bedroom detached house, the property requires cosmetic updates including a new kitchen and the removal of an aging conservatory. However, the groundwork for future development has already been laid. The current owners have invested in key upgrades such as aluminium double-glazed windows, thermal insulation to the bedrooms, hall and landing, and new radiators throughout.
Neighbouring property extensions show that there is a clear precedent for extending the footprint of the home to the side, rear and into the loft. The size of the plot offers flexibility to significantly increase internal space without compromising the generous garden-a rare find in this central Lady Bay location.
Internally, the house currently comprises a large, bright entrance hallway with downstairs WC, a bay-fronted living room with cafe style shutters recently installed and column radiators. There is a chimney and modern slate hearth which provides the opportunity to install a log burner. At the rear of the house there is a separate kitchen with window overlooking the mature garden, and a new aluminium back door to the side, which provides easy access to the garage and garden. Currently the back room is used as a lounge but would lend itself to a dining room with its original wooden floorboards, this leads out to the conservatory, and garden beyond.
As you climb the wide stairway, there is a side window which provides light to the landing. There are three bedrooms, like many 1930s properties, there are two double bedrooms of a good size, and one smaller box room. All of the bedrooms have new, neutral grey carpets, new column-style radiators and new large aluminium windows. There is a family bathroom and a separate WC. There is access to the loft via an in-built ladder for additional storage, but this presents a further opportunity for conversion.
There is a large, detached garage with a new electric door and window. This could be converted into a studio, office or garden. There is currently a large, raised decking area overlooking the large, established garden which enjoys a considerable amount of privacy and extends to 85ft. At the front of the property there is a private driveway for one car, which is a benefit of this age of property.
This is a rare chance to buy a generously sized plot in Lady Bay and to create a long-term family home tailored to your needs. Whether you're a developer or a homeowner looking for a project, this is an opportunity with exciting scope.
Back to property search





















