Key information
£850,000
Beech Avenue, New Basford
View on map
Fill in the form to download the brochure
Thank you, your download will begin shortly
Key features
- Located on Beech Avenue, Nottingham NG7
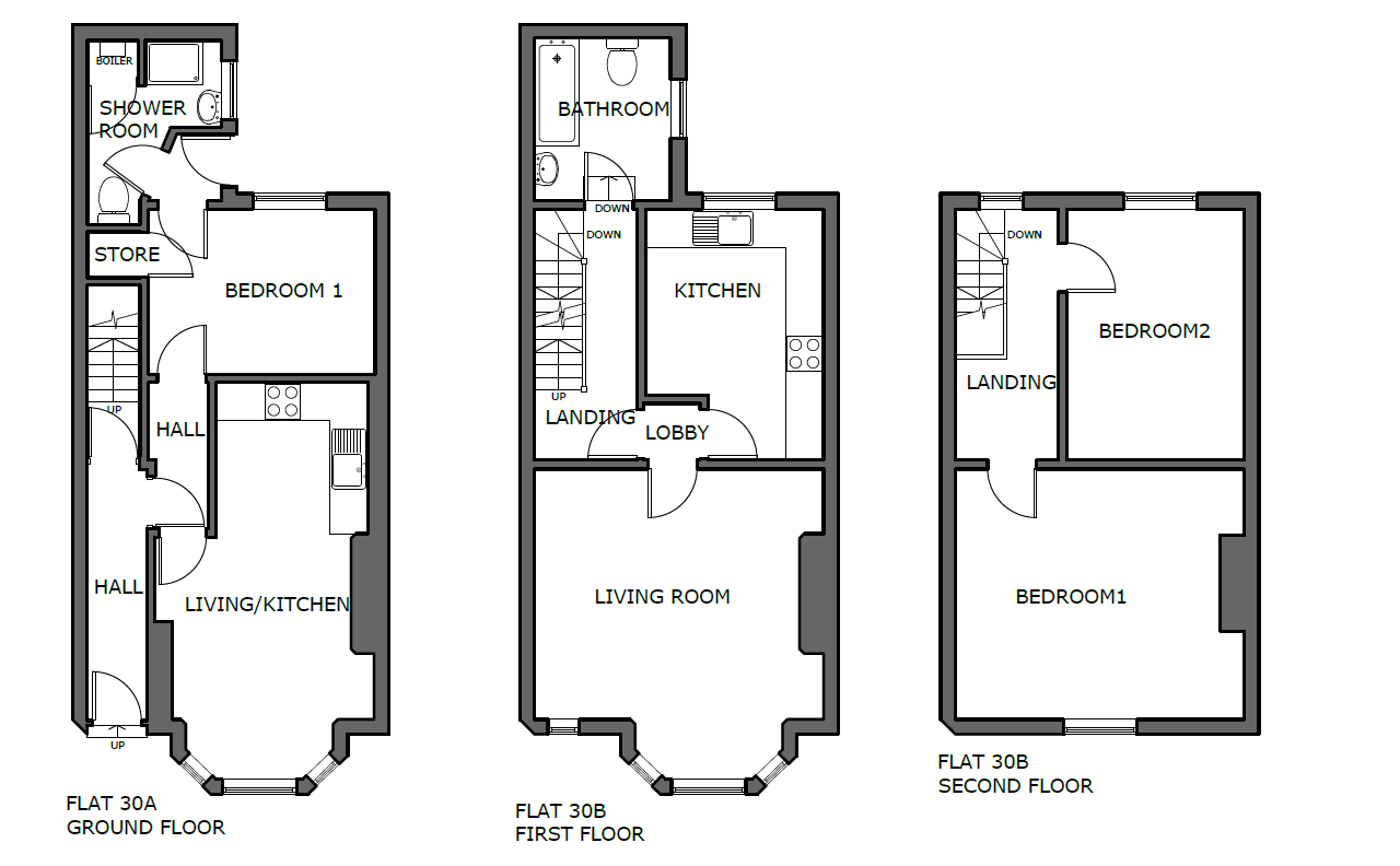
- Nine self-contained flats: 8 × 1-bed, 1 × 2-bed
- Fully let with £66,665.40 per annum passing rent (Aug 2024 levels)
- Let to René House CIC, a supported accommodation provider
- 5-year lease in place providing secure income
- Modern kitchens and bathrooms throughout
- Excellent transport links to Nottingham city centre, QMC and universities
- Strong rental location with proven occupancy
- Low landlord costs (approx. £2,500 pa including insurance)
- 7.84% gross yield / 7.55% net yield at £850,000
Overview
FHP are pleased to present this fully let nine-unit residential investment located on Beech Avenue, within a strong and established rental area of Nottingham's NG7 district. The property comprises eight one-bedroom apartments and one two-bedroom apartment, all self-contained and well presented throughout.The block is fully income producing and let on a 5-year lease to a supported accommodation provider.
Following the August 2024 rent review, the current passing rent is £66,665.40 per annum, confirmed across the three buildings.
Signed Rent Increase Lease Adde…
Beech Avenue benefits from excellent access to shops, supermarkets and public transport routes, providing quick links to Nottingham city centre, the Queen's Medical Centre, Nottingham City Hospital and both university campuses. This location continues to attract strong rental demand and delivers stable occupancy.
Following the August 2024 rent review, the property generates a passing rent of £66,665.40 per annum and is now available at a guide price of £850,000.
At this level, the investment provides an attractive 7.84% gross yield and approximately 7.55% net yield after landlord costs, presenting a strong return within a secure and proven rental market. With low annual landlord costs of approximately £2,500 including insurance, this represents a highly efficient and low-maintenance investment opportunity.
Back to property search


















