Land for sale, Loughborough Road, Ruddington, Nottingham
Key information
£1,300,000
Property type
Land - Building Plot
Location
222a, Loughborough, Road, Ruddington, Nottingham, NG11 6NX
View on map
Download brochure
Key features
- CALLING ALL DEVELOPERS!
- Fantastic opportunity to build two large executive homes
- Available as a site or as separate building plots
- Planning permission granted for 2, 6 bedroom dwellings
- Stamp duty savings
- Close to local amenities and Rushcliffe Country Park
- Sought-after village location
- Site walks are available
- Full plans on request
- Contact us for more information
Overview
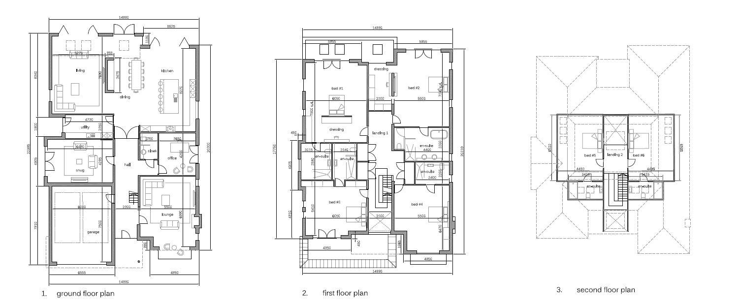
CALLING ALL DEVELOPERS!Situated on 0.55 acres along Loughborough Road, it's currently home to a modest two-storey dwelling but is on the cusp of a remarkable transformation. With planning permission already secured, the future here looks bright and luxurious.
The approved plans envision two stunning 6-bedroom homes, each designed with privacy and comfort in mind. Both will have their own separate entrances and private driveways, providing a sense of exclusivity.
The planning permission that is approved has a size for Plot 1 (right plot) at 6,706 sqft, Plot 2 (Left plot) at 6,700 sqft.
Inside, each home is a haven of spacious, well-thought-out design:
- Kitchen/diner/lounge for casual family living and dining
- A formal lounge perfect for entertaining guests
- A cozy snug, ideal for quiet relaxation
- A dedicated office for work-from-home convenience
- A practical utility room to keep things tidy
- 6 generously-sized bedrooms, each with its own en suite for added luxury
- A double garage for secure parking and storage
Outside, the properties will feature:
- Landscaped rear gardens stretching over 21.5 meters, offering a peaceful retreat
- Sweeping views of Elms Park, adding natural beauty to the surroundings
With these plans in place, this site is set to transform into an exclusive enclave, perfect for those seeking modern luxury with a touch of tranquility.











