Key information
£650,000
Plots 1 & 2, Loughborough Road, Ruddington, Nottingham
View on map
Fill in the form to download the brochure
Thank you, your download will begin shortly
Key features
- BUY YOUR PLOT AND CHOOSE YOUR OWN BUILDER!
- Available as a site or as separate building plots
- Planning permission granted for 2, 6 bedroom dwellings
- Stamp duty savings
- Award winning developer, Northsands, is available to do the build, if required
- Close to local amenities and Rushcliffe Country Park
- Sought-after village location
- Site walks are available
- Fantastic opportunity to build your dream home
- Contact us for more information
Overview
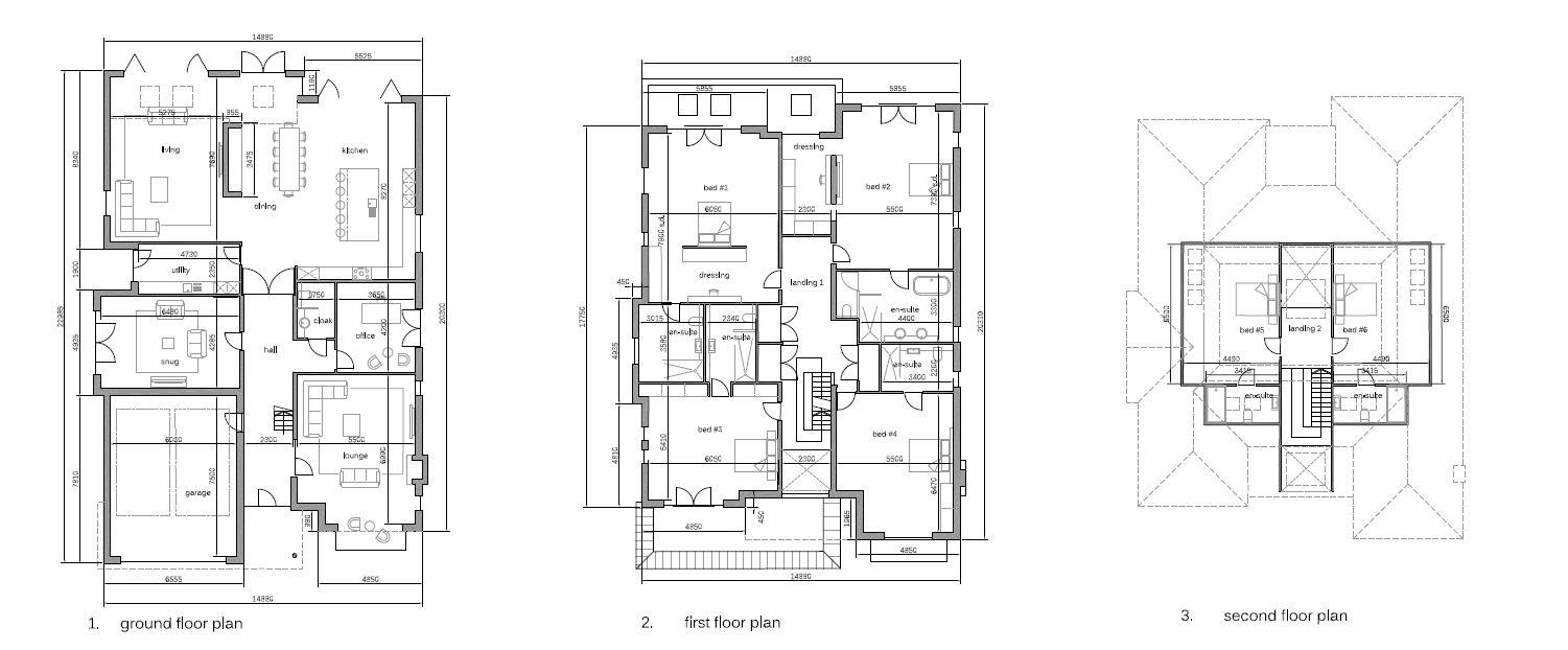
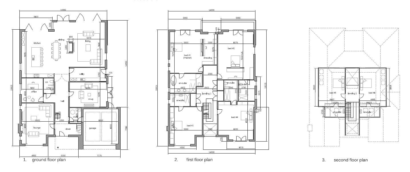
PLANNING GRANTED! BUY YOUR PLOT AND CHOOSE YOUR OWN BUILDER! PRICE PER PLOT!Situated on 0.55 acres along Loughborough Road, it's currently home to a modest two-storey dwelling but is on the cusp of a remarkable transformation. With planning permission already secured, the future here looks bright and luxurious.
The approved plans envision two stunning 6-bedroom homes, each designed with privacy and comfort in mind. Both will have their own separate entrances and private driveways, providing a sense of exclusivity.
The planning permission that is approved has a size for Plot 1 (right plot) at 6,706 sqft, Plot 2 (Left plot) at 6,700 sqft.
Inside, each home is a haven of spacious, well-thought-out design:
- Kitchen/diner/lounge for casual family living and dining
- A formal lounge perfect for entertaining guests
- A cozy snug, ideal for quiet relaxation
- A dedicated office for work-from-home convenience
- A practical utility room to keep things tidy
- 6 generously-sized bedrooms, each with its own en suite for added luxury
- A double garage for secure parking and storage
Outside, the properties will feature:
- Landscaped rear gardens stretching over 21.5 meters, offering a peaceful retreat
- Sweeping views of Elms Park, adding natural beauty to the surroundings
With these plans in place, this site is set to transform into an exclusive enclave, perfect for those seeking modern luxury with a touch of tranquility.
Award winning developer, Northsands, are happy to quote to do the build of your new luxury home - Please contact us for more information.
Back to property search










